Sonniges 210m² großes Haus auf 4 Ebenen mit schönem 320m² Südwestgarten und großer Südwestgartenterrasse.
( 2 Wohnzimmer, Esszimmer, Küche, Teeküche, 4 Schlafzimmer, 3 Bäder, Schrankraum, begehbare Garderobe, 3 Abstellräume, 5 WCs )
— WIENBLICK —
Bezugsdatum: ab sofort
Erdgeschoss – 60m² : Vom Vorzimmer gelangt man in das schöne 26m² südwestseitige Wohnzimmer mit offenem Kamin und durch die großzügigen, gartenseitigen Terrassentüren hat man einen direkten Zugang in den 320m² Südwestgarten und zur südwestseitigen Gartenterrasse. Die moderne Küche ist durch eine Schiebetüre mit dem Wohnzimmer verbunden und in Richtung südostseitigem Esszimmer mit einer Glasscheibe und einem Durchgang geöffnet. Die Küche verfügt über einen Geschirrspüler, Ceranfeld, Backrohr, Mikrowelle und einen Dunstabzug. Weiters gibt es auf dieser Ebene ein WC mit Fenster und einen Garderobenbereich.
Obergeschoss – 54m² : Die zwei Schlafzimmer sind zentral vom Vorzimmer ausbegehbar. Das südostseitige Schlafzimmer verfügt über eine 6m² große Ostterrasse – das 16m² große Schlafzimmer ist südwestseitig. Das Badezimmer mit Fenster ist mit einer großen Eckwanne, einer Glasdusche und einem Spiegel mit Beleuchtung versehen. Das WC mit Fenster ist separat. Weiters gibt es eine 6m² begehbare Garderobe.
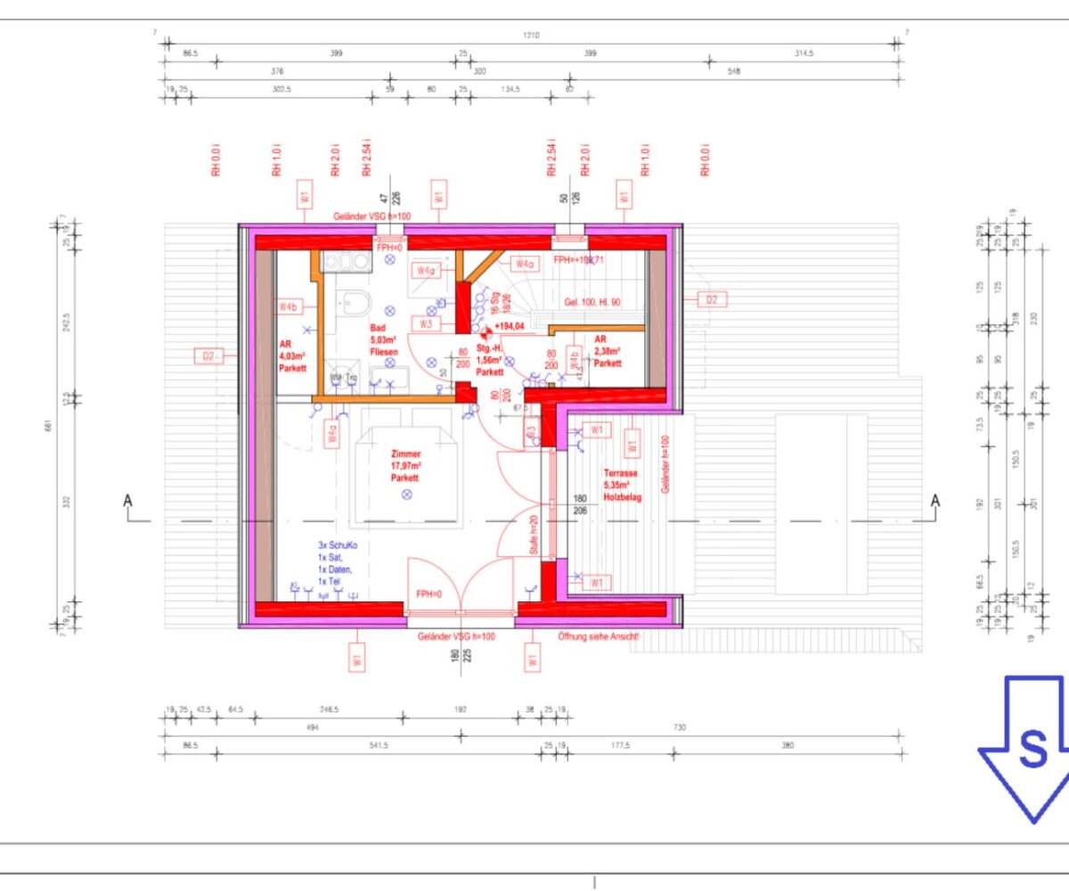
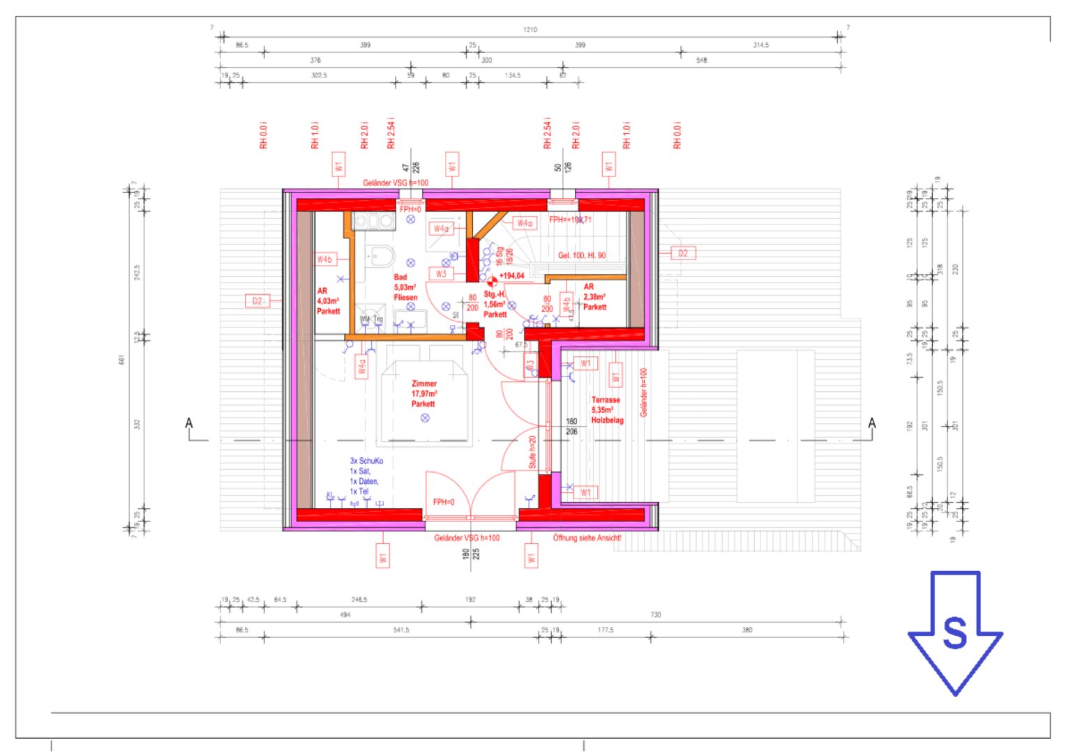
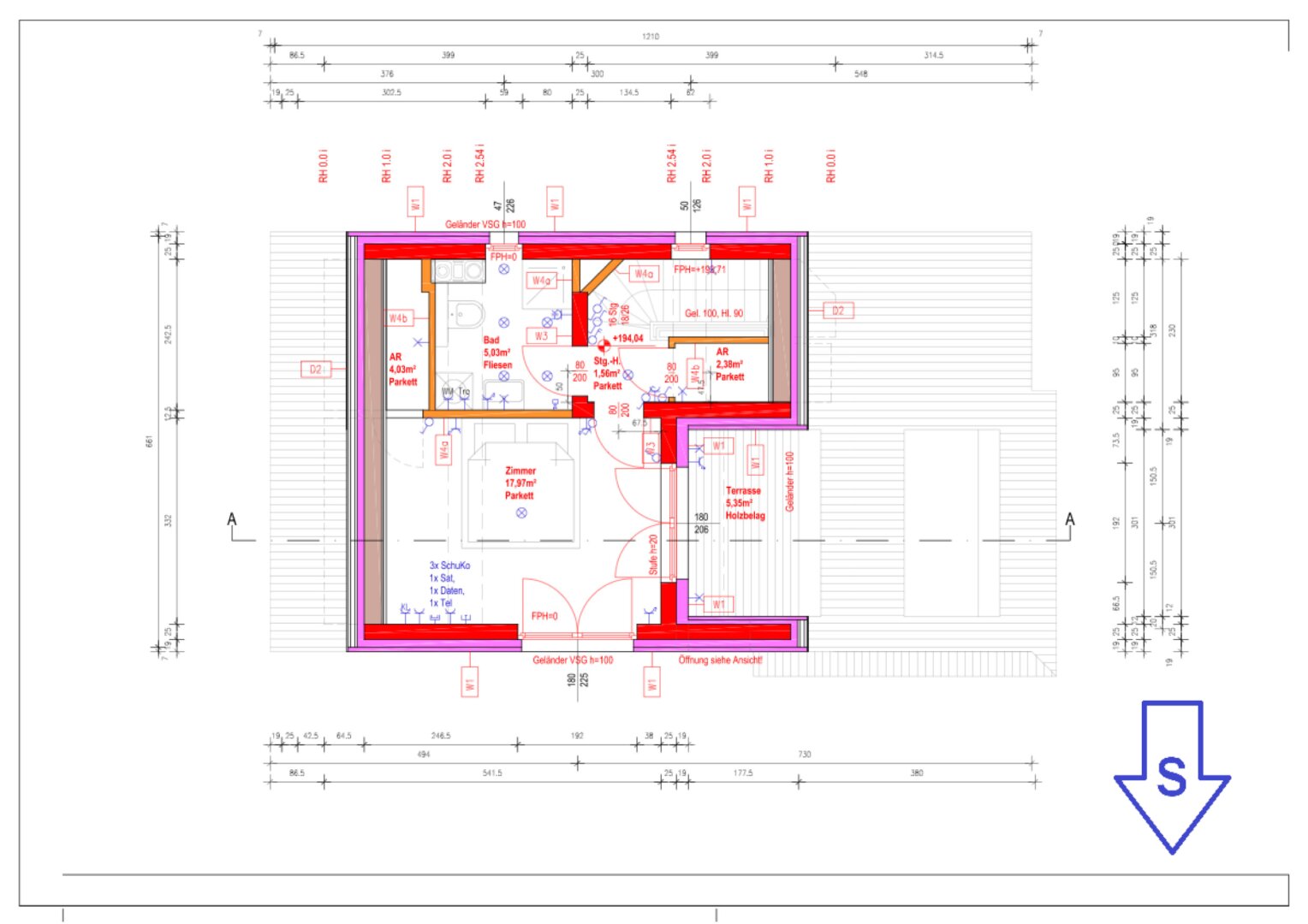
Dachgeschoss – 36m² : Das 18m² Schlafzimmer ist südostseitig und hat eine anschließende 5m² Ostterrasse. Das Badezimmer ist mit einem Fenster, einer Dusche, einem Waschbecken, einem WC und einem Waschmaschinenanschluss versehen. Weiters gibt es 2 Abstellräume.
Gartengeschoss – 60m²: Auf dieser Ebene gibt es eine Einliegerwohnung, die aus einem 16m² Wohnzimmer mit Teeküche, einem 14m² südseitigen Schlafzimmer mit anschließendem Badezimmer und Schrankraum besteht sowie über einen 2. Eingang ins Haus verfügt. Vom Wohnzimmer hat man direkten Zugang in den schönen Ostteil des Gartens. Das Badezimmer ist mit einem WC, Waschbecken und einer Glasdusche ausgestattet. Weiters gibt es auf dieser Ebene ein WC und einen Abstellraum sowie einen Waschmaschinenanschluss und einen Technikraum.
Im schönen 320m² großen Südwestgarten gibt es ein Gartenhaus und eine automatische Bewässerung.
Infrastruktur: Öffentliche Verbindungen:Bus 44 A Grabengasse/Plachygasse, S45 Hernals: 20 Minuten, Schottentor: 35 Minuten,Stephansplatz: 43 Minuten, UNO-City: 58 Minuten
Herrliche Freizeitmöglichkeiten am nahen Heuberg und Wilhelminenberg sowie gute Einkaufsmöglichkeiten auf der Alszeile. Eine aktuelle Schul- und Kindergartenaufstellung liegt uns auf und kann Ihnen gerne übermittelt werden.
Der Immobilienmakler erklärt, dass er – entgegen dem in der Immobilienwirtschaft üblichen Geschäftsgebrauch des Doppelmaklers – einseitig nur für den Vermieter tätig ist.
Ausstattung: HWB 49,74 fGEE 0,65
- Das Haus ist in Ziegelbauweise errichtet.
- Gasbrennwerttherme
- Fußbodenheizung in jedem Raum individuell regelbar
- Parkett – Doussie
- In den Bädern und WCs sind Villeroy & Boch – Fliesen verlegt
- EWE-Küche mit AEG-Geräten
- im Ober- und Dachgeschoß befindet sich eine Klimaanlage
- elektrische Außenjalousien
- Video-Gegensprechanlage
- Alarmanlage
- 32 Decken- und Außen-Lampen in allen Zimmern bereits montiert
- Satelliten – Fernseher + Internet – Anschlüsse in allen Zimmern
Beziehbarkeit: ab sofort
Mietdauer: 10 Jahre
GESAMTMIETE: € 4.730,-- inkl. BK, MwSt
HMZ: € 4.000,-- BK: € 300,-- MwSt: € 430,--
BK: € 300,--
Provision: Gemäß Erstauftraggeberprinzip bezahlt der Abgeber die Provision. Kaution: € 15.000,--
Eigenschaft Funktionen
- Abstellraum
- Alarmanlage
- Außenliegender Sonnenschutz
- Bad mit Fenster
- Badewanne
- Doppel- / Mehrfachverglasung
- Dusche
- Einbauküche
- Etagenheizung
- Fernblick
- Fliesen
- Fußbodenheizung
- Gartennutzung
- Gas
- Gäste-WC
- Kabel / Satelliten-TV
- Klimaanlage
- Kunststofffenster
- Öffenbare Fenster
- Ostbalkon / -terrasse
- Pantryküche (Miniküche oder Schrankküche)
- Parkett
- Stadtblick
- Südwestbalkon / -terrasse
- Toilette
- Wohnküche / offene Küche
- Ziegel
Karte
Was ist in der Nähe?
Schule / Ausbildung
- American International School (1.75 km)6 Bewertungen
- DeutschAkademie Sprachschule Wien (4.74 km)2 Bewertungen
- Vienna Business School HAK/HAS (6.15 km)2 Bewertungen
Park
- Abenteuerspielplatz Robinson-Insel (4.52 km)3 Bewertungen
- Setagayapark (3.89 km)17 Bewertungen
- Schlosspark Wasserschloss Kottingbrunn (19.35 km)1 Bewertungen
Restaurants
- Gasthaus Pöschl (4.82 km)336 Bewertungen
- Ulrich (3.99 km)171 Bewertungen
- Fuhrgassl-Huber Buschenschank (1.92 km)24 Bewertungen
Lebensmittelgeschäft
- Merkur Markt (4.73 km)33 Bewertungen
- Billa (4.69 km)15 Bewertungen
- HOFER (2.9 km)4 Bewertungen
Cafés
- GOTA coffee (3.56 km)19 Bewertungen
- Emmi (30.02 km)5 Bewertungen
- Daniel Moser's Cottage (3.62 km)6 Bewertungen










































