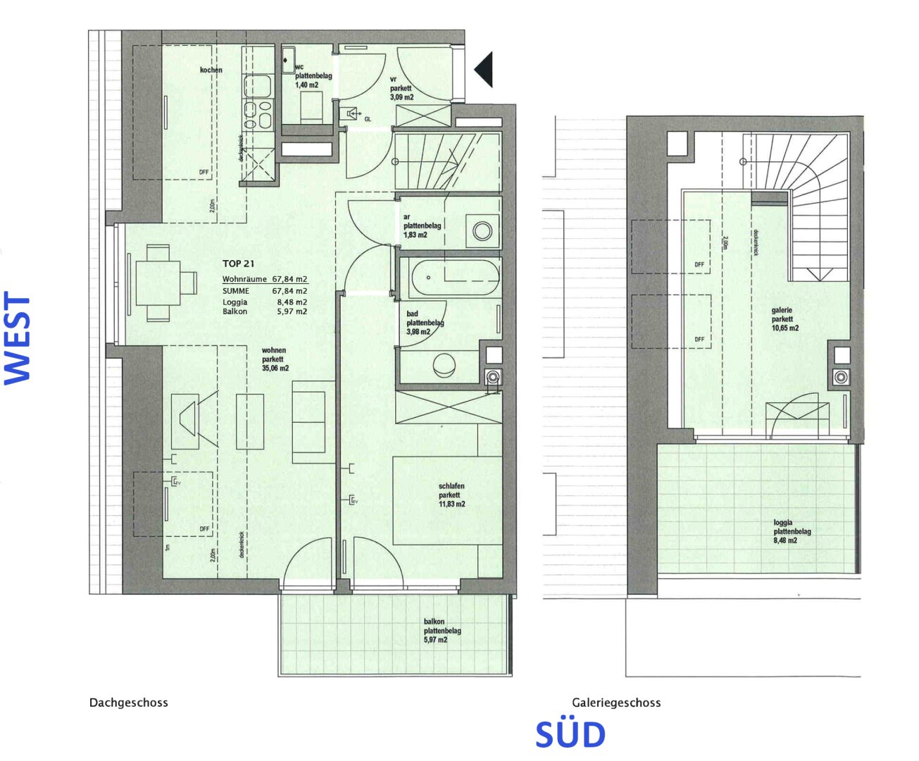
Sonnige, südseitige 68m² große 2-Zimmer-Wohnung mit 6m² großer Südterrasse und 8m² großer Südloggia.
( Vorzimmer, Südterrasse, Südloggia, Wohnesszimmer mit offener Küche, Schlafzimmer, Galerie, Badezimmer, Abstellraum, WC & Kellerabteil )
— Dachgeschoss mit Lift —
Bezugsdatum: sofort
Vom 3m² großen Vorzimmer gelangt man in das sonnige, südseitige 35m² Wohnesszimmer mit offener Küche und anschließender 6m² großer Südterrasse. Die Küche ist mit einem Ceranfeld, Backrohr, Dunstabzug, Mikrowelle, Geschirrspüler und einem Kühlschrank + Gefrierfach ausgestattet. Das Schlafzimmer ist 12m² groß und verfügt ebenfalls über einen Zugang zur schönen 6m² großen, südseitigen Terrasse. Vom Wohnzimmer gelangt man über eine Treppe auf die 11m² große Galerie, die als Arbeitsbereich genutzt werden kann und zur anschließenden 8m² großen Südloggia.
Das Badezimmer ist mit einer Wanne, Waschtisch + fliesenbündigem Spiegel, Handtuchtrockner sowie einer elektrischen Entlüftung ausgestattet ist. Das WC mit Handwaschbecken, Spiegel und elektrischer Entlüftung ist separat. Weiters gibt es einen 2m² großen Abstellraum mit Waschmaschinenanschluss.
Der Wohnung ist ein Kellerabteil zugeordnet.
€ 250,– Mietvertragskosten bei der Hausverwaltung
HIER GEHTS ZUM VIRTUELLEN RUNDGANG DURCH DAS APARTMENT
Garagenstellplatz für Auto oder Motorrad zu mieten möglich.
Infrastruktur: In fußläufiger Entfernung befindet sich der Maurer Hauptplatz. Am Maurer Hauptplatz finden Sie die öffentlichen Verkehrsmittel Straßenbahnlinie 60, Buslinie 60a und 56a. In der Maurer Lange Gasse befindet sich ein Billa sowie ein Denn’s Bio Supermarkt. Am Maurer Hauptplatz gibt es einen Spar sowie eine Apotheke, Libro, Billa und ein DM durch welche man Bestens für den täglichen Bedarf versorgt ist. In der Umgebung befinden sich zahlreiche Heurigen und Restaurants. Die Nähe zum Wiener Wald lädt zu ausgedehnten Spaziergänge ein. Eine aktuelle Schul- und Kindergartenaufstellung liegt uns auf und kann übermittelt werden.
Der Immobilienmakler erklärt, dass er – entgegen dem in der Immobilienwirtschaft üblichen Geschäftsgebrauch des Doppelmaklers – einseitig nur für den Vermieter tätig ist.
Ausstattung: HWB 54,6 fGEE 1,06
- Parkett +Fliesen
- Fahrradabstellraum
- Videogegensprechanlage
- Telekabelanschluss
- Gaszentralheizung
- Wasch – und Trockenraum
- Innenjalousien
- Terrasse mit Beleuchtung, Strom- & Wasseranschluss
Beziehbarkeit: ab sofort
Mietdauer: 5 Jahre
GESAMTMIETE: € 1.280,-- inkl. BK, Sonstiges, MwSt
HMZ: € 983,36 BK: € 179,36 MwSt: € 116,28
BK: € 179,36
Sonstiges: € 1,--
Provision: Gemäß Erstauftraggeberprinzip bezahlt der Abgeber die Provision. Kaution: € 4.500,--
Eigenschaft Funktionen
- Badewanne
- Einbauküche
- Fahrradraum
- Fliesen
- Gas
- Gäste-WC
- Kabel / Satelliten-TV
- Kunststofffenster
- Parkett
- Personenaufzug
- Südbalkon / -terrasse
- Wasch- / Trockenraum
- Wohnküche / offene Küche
- Zentralheizung
Karte
Was ist in der Nähe?
Schule / Ausbildung
- American International School (6.99 km)6 Bewertungen
- DeutschAkademie Sprachschule Wien (5.74 km)2 Bewertungen
- Vienna Business School HAK/HAS (9.33 km)2 Bewertungen
Park
- Ölzeltpark (0.3 km)1 Bewertungen
- Sterngarten Georgenberg (0.87 km)1 Bewertungen
- Explore Bau (0.3 km)0 Bewertungen
Restaurants
- Ambrosia (0.18 km)6 Bewertungen
- Edlmoser (0.51 km)8 Bewertungen
- Restaurant Mauer (0.48 km)3 Bewertungen
Lebensmittelgeschäft
Cafés
- _Rauwolf (1.18 km)8 Bewertungen
- Dolce Cucina (1.5 km)0 Bewertungen
- Anker (0.14 km)1 Bewertungen









































































